Domy mieszkalneSprzedam za 385 000 zł
Ogł. nr 896069
z 15 grudnia
BIURO NIERUCHOMOŚCI
SZULC& SZULC
Powierzchnia działki: 700 m2
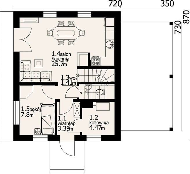
Dom na sprzedaż w stanie surowym zamkniętym w miejscowości Milejewo przy ul. Stawowej. Dom o pow. użytkowej 89 m2,parterowy z użytkowym poddaszem /Gładyszowo/ ze zmienionym układem ścian, okien, podniesiona ścianka kolankowa. Prąd przy działce, woda w drodze.
ZAPRASZAMY DO OGLĄDANIA
Kredyt na zakup nieruchomości załatwisz u specjalisty kredytowego w biurze.
Parter: przedpokój, pokój z aneksem kuchennym, sypialnia, kotłownia, WC.
Piętro: przedpokój, 3 pokoje, łazienka z WC.
Dom pokryty dachówką ceramiczną, okna trzyszybowe, przewidziano wentylację grawitacyjną, piec na pellet, szambo ekologiczne.
Dojazd do nieruchomości drogą utwardzoną, wjazd z drogi głównej asfaltowej.
W miejscowości są dwa sklepy, szkoła, przedszkole, ośrodek zdrowia, komunikacja miejska, kościół, bank, do Elbląga 10 km.
Ogłoszenia premium
ZatrudnięObsługa magazynu
Ogł. nr 895407
z 10 grudnia
🌟 OFERTA PRACY – ULWEHOME 🌟
ZatrudnięHandel
Ogł. nr 895170
z 9 grudnia
Doradca działu części – HADM Gramatowski
ZatrudnięProdukcja
Ogł. nr 895759
z 12 grudnia
ZATRUDNIE
TAPICERA MEBLOWEGO
Osobe do wykroju i DO SZYCIA TAPICERKI
dobre warunki placy i pracy w zgranym zespole
ZatrudnięProdukcja
Ogł. nr 895181
z 9 grudnia
Zatrudnię – Pracownika na malarnię
Firma działająca w branży konstrukcji metalowych, poszukuje kandydatów na stanowisko:
Lakiernik
Pracownika na malarnię
Lokale mieszkalneSprzedam za 749 000 zł
Ogł. nr 895242
z 13 grudnia
Na sprzedaż mieszkanie na BIELANACH ul. Nowogródzka z miejscem postojowym w garażowcu
Osoby, które zainteresowało to ogłoszenie obejrzały również:
Działki, gruntySprzedam za 165 000 zł
Ogł. nr 896118
z 15 grudnia
🏡 Nowa oferta tylko w FiDU Nieruchomości
📍Pomorska Wieś
- Działka 3 094 m² 📐
- Z pozwoleniem na budowę 🧾
- Projektem na dom jednorodzinny „ Celozja” 🏡
Zapraszam na prezentacje.
Domy mieszkalneSprzedam za 1 050 000 zł
Ogł. nr 896085
z 15 grudnia
LEVEL NIERUCHOMOŚCI
Dom wielofunkcyjny w Stegnie
Trzy apartamenty
94,63m2
NIERUCHOMOŚCI NA POZIOMIE
Domy mieszkalneSprzedam za 1 150 000 zł
Ogł. nr 895735
z 12 grudnia
GALERIA NIERUCHOMOŚCI
Z pasji i miłości do nieruchomości
Na sprzedaż: Dom wolnostojący/pensjonat na sprzedaż w Mikoszewie
gnieruchomosci. pl
Kontakt mailowy: ogloszenia@portel.pl


























