Domy mieszkalneSprzedam za 385 000 zł
Ogł. nr 899239
z 7 stycznia
BIURO NIERUCHOMOŚCI
SZULC& SZULC
Powierzchnia działki: 700 m2
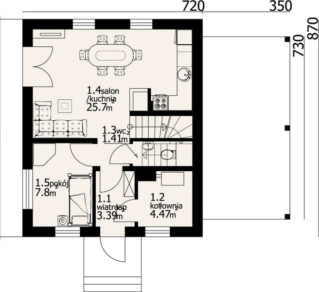
Dom na sprzedaż w stanie surowym zamkniętym w miejscowości Milejewo przy ul. Stawowej. Dom o pow. użytkowej 89 m2,parterowy z użytkowym poddaszem /Gładyszowo/ ze zmienionym układem ścian, okien, podniesiona ścianka kolankowa. Prąd przy działce, woda w drodze.
ZAPRASZAMY DO OGLĄDANIA
Kredyt na zakup nieruchomości załatwisz u specjalisty kredytowego w biurze.
Parter: przedpokój, pokój z aneksem kuchennym, sypialnia, kotłownia, WC.
Piętro: przedpokój, 3 pokoje, łazienka z WC.
Dom pokryty dachówką ceramiczną, okna trzyszybowe, przewidziano wentylację grawitacyjną, piec na pellet, szambo ekologiczne.
Dojazd do nieruchomości drogą utwardzoną, wjazd z drogi głównej asfaltowej.
W miejscowości są dwa sklepy, szkoła, przedszkole, ośrodek zdrowia, komunikacja miejska, kościół, bank, do Elbląga 10 km.
Ogłoszenia premium
Lokale mieszkalneSprzedam za 399 000 zł
Ogł. nr 899436
z 8 stycznia
NIERUCHOMOŚCI ANNA KRASZEWSKA
Trzypokojowe mieszkanie po remoncie na parterze
*media miejskie
ul. Słoneczna
Lokale mieszkalneSprzedam za 399 000 zł
Ogł. nr 898308
z 1 stycznia
👑🏠 KINGDOM 🏠👑
NIERUCHOMOŚCI BLISKO CIEBIE
PRZESTRONNE 3-POKOJOWE MIESZKANIE
Z DUŻYM OGRÓDKIEM I GARAŻEM
POŁOŻONE NA 1 PIĘTRZE W ODNOWIONEJ KAMIENICY
ULICA POPRZECZNA, ELBLĄG
GastronomiaWykonam usługę za 25 zł
Ogł. nr 899217
z 7 stycznia
🍲 LUBISZ SCHABOWEGO Z ZIEMNIACZKAMI I KAPUSTKĄ?
ZAPRASZAMY NA SCHABOWEGO Z ZIEMNIACZKAMI I KAPUSTKĄTylko za 25 zł! 😊Bar Na Wspólnej zaprasza codziennie na obiady w godz.11:00-17:00
ZatrudnięProdukcja
Ogł. nr 899167
z 7 stycznia
MEBLE WÓJCIK SP. Z O. O.
poszukuje
MISTRZA/MISTRZYNI UTRZYMANIA RUCHU
Sam. osoboweKupię
Ogł. nr 899312
z 7 stycznia
Skup Aut Elbląg i Okolice – Gotówka od Ręki! Szybko, legalnie i bez stresu! Skupujemy samochody w każdym stanie – dojazd do klienta GRATIS!
Kontakt mailowy: ogloszenia@portel.pl
























