Domy mieszkalneSprzedam za 385 000 zł
Ogł. nr 899731
z 10 stycznia
BIURO NIERUCHOMOŚCI
SZULC& SZULC
Powierzchnia działki: 700 m2
Dom na sprzedaż w stanie surowym zamkniętym w miejscowości Milejewo przy ul. Stawowej. Dom o pow. użytkowej 89 m2,parterowy z użytkowym poddaszem /Gładyszowo/ ze zmienionym układem ścian, okien, podniesiona ścianka kolankowa. Prąd przy działce, woda w drodze.
ZAPRASZAMY DO OGLĄDANIA
Kredyt na zakup nieruchomości załatwisz u specjalisty kredytowego w biurze.
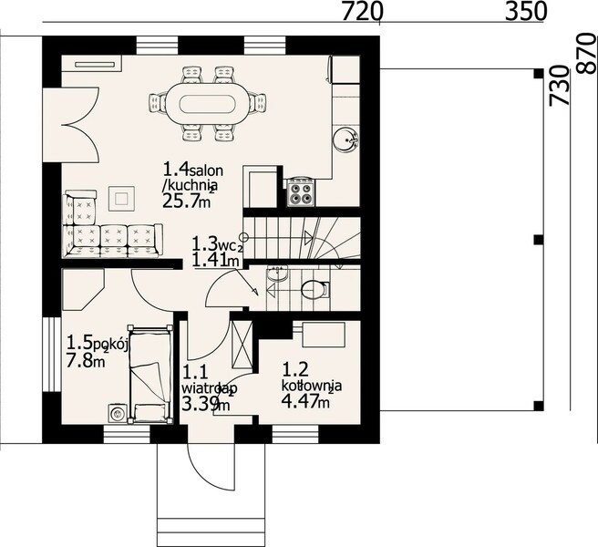
Parter: przedpokój, pokój z aneksem kuchennym, sypialnia, kotłownia, WC.
Piętro: przedpokój, 3 pokoje, łazienka z WC.
Dom pokryty dachówką ceramiczną, okna trzyszybowe, przewidziano wentylację grawitacyjną, piec na pellet, szambo ekologiczne.
Dojazd do nieruchomości drogą utwardzoną, wjazd z drogi głównej asfaltowej.
W miejscowości są dwa sklepy, szkoła, przedszkole, ośrodek zdrowia, komunikacja miejska, kościół, bank, do Elbląga 10 km.
Ogłoszenia premium
ZatrudnięObsługa magazynu
Ogł. nr 899162
z 7 stycznia
MEBLE WÓJCIK SP. Z O. O.
poszukuje pracowników na stanowisko:
OPERATOR/KA WÓZKA WIDŁOWEGO
ZatrudnięTransport
Ogł. nr 899634
z 9 stycznia
PAL - DREW Producent Palet Drewnianych
zatrudni osobę na stanowisko
KIEROWCA
Samochodu Ciężarowego
GastronomiaWykonam usługę za 25 zł
Ogł. nr 899221
z 7 stycznia
🍲 OBIADY abonamentowe w "BARZE NA WSPÓLNEJ" z dowozem do domu
Możliwa dieta łatwostrawna, wątrobowa, cukrzycowa – dostarczamy posiłki przez 7 dni w tygodniu, również w święta!
ZAPRASZAMY SENIORÓW NA PYSZNE OBIADY – Obiad dnia (zupa + drugie danie) w atrakcyjnej cenie 25 zł / obiad 🥘
Do ogroduWykonam usługę
Ogł. nr 899316
z 8 stycznia
🌳 Wycinamy i pielęgnujemy drzewa w miejscach trudno dostępnych 🌳
Podcinamy drzewa owocowe, wykonujemy cięcia techniczne, likwidujemy zagrożenia, usuwamy suche i połamane konary. Montujemy karmniki i budki dla ptaków. Szybko i skutecznie reagujemy na interwencje.
Lokale mieszkalneSprzedam za 289 000 zł
Ogł. nr 898872
z 5 stycznia
⭐ ⭐ ⭐ ⭐ ⭐
FiDU Biuro Nieruchomości prezentuje:
Mieszkanie z potencjałem: 48,26 m² 📐, osobna kuchnia 🍽️, balkon 🌇, piwnica 📦
Media miejskie🔥Mieszkanie w bloku 🔑
Świetna lokalizacja: sklepy 🛒, szkoła 🏫 i przystanki 🚌 tuż obok
Osoby, które zainteresowało to ogłoszenie obejrzały również:
Domy mieszkalneSprzedam za 550 000 zł
Ogł. nr 897994
z 29 grudnia
BIURO NIERUCHOMOŚCI
SZULC& SZULC
Budynek mieszkalny parterowy z możliwością rozbudowy w miejscowości Elbląg przy ul. Kartuska 10.Dom o łącznej powierzchni: 110 m2,położony na działce o powierzchni: 300 m2.Budynek składa się z salonu z aneksem kuchennym, 3 sypialnie, łazienka z WC, przedpokój. Ogrzewanie gazowe, okna PCV. Wydane warunki do lokalu użytkowego na parterze.
ZAPRASZAMY DO OGLĄDANIA
Kredyt na zakup nieruchomości załatwisz u specjalisty kredytowego w biurze.
Domy mieszkalneSprzedam za 265 000 zł
Ogł. nr 898497
z 2 stycznia
NIERUCHOMOŚCI ANNA KRASZEWSKA
Dom w zabudowie bliźniaczej z własnościową działką
Powodowo, gmina Rychliki
ok.30 km od Elbląga
Kontakt mailowy: ogloszenia@portel.pl


























