Domy mieszkalneSprzedam za 385 000 zł
Ogł. nr 900985
z 18 stycznia
BIURO NIERUCHOMOŚCI
SZULC& SZULC
Powierzchnia działki: 700 m2
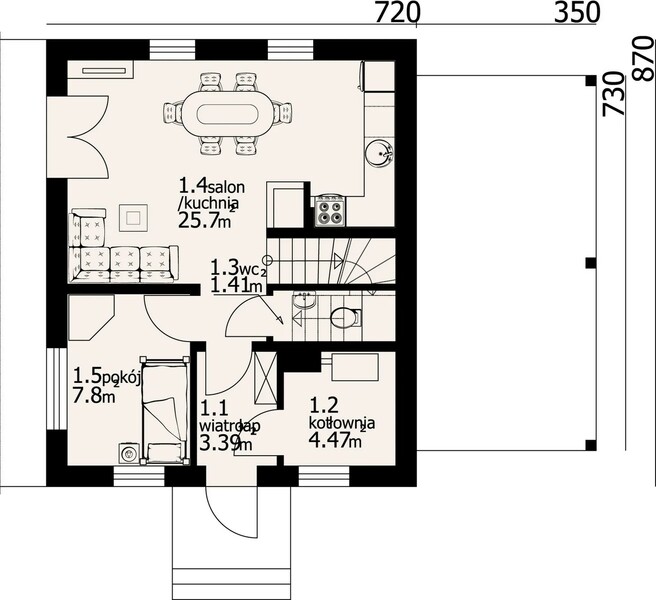
Dom na sprzedaż w stanie surowym zamkniętym w miejscowości Milejewo przy ul. Stawowej. Dom o pow. użytkowej 89 m2,parterowy z użytkowym poddaszem /Gładyszowo/ ze zmienionym układem ścian, okien, podniesiona ścianka kolankowa. Prąd przy działce, woda w drodze.
ZAPRASZAMY DO OGLĄDANIA
Kredyt na zakup nieruchomości załatwisz u specjalisty kredytowego w biurze.
Parter: przedpokój, pokój z aneksem kuchennym, sypialnia, kotłownia, WC.
Piętro: przedpokój, 3 pokoje, łazienka z WC.
Dom pokryty dachówką ceramiczną, okna trzyszybowe, przewidziano wentylację grawitacyjną, piec na pellet, szambo ekologiczne.
Dojazd do nieruchomości drogą utwardzoną, wjazd z drogi głównej asfaltowej.
W miejscowości są dwa sklepy, szkoła, przedszkole, ośrodek zdrowia, komunikacja miejska, kościół, bank, do Elbląga 10 km.
Ogłoszenia premium
Kursy, szkoleniaWykonam usługę za 1 190 zł
Ogł. nr 900573
z 15 stycznia
🚜 Nowe kursy operatorów maszyn w 2026 r. – Start już w styczniu!
Zapraszamy na profesjonalne szkolenia operatorów: równiarek, koparko-ładowarek, koparek jednonaczyniowych, przecinek, węzłów, pomp, ładowarek jednonaczyniowych, walców, pilarek oraz rusztowań. Realizujemy kursy na urządzenia transportu bliskiego: podesty, żurawie, suwnice, wciągarki, wciągniki, wszystkie kategorie wózków jezdniowych. Kursy z ramienia UDT ruszają już 24 stycznia!Zapisy na kursy wózków w Elblągu do 21 stycznia! 😊
ZatrudnięProdukcja
Ogł. nr 900739
z 16 stycznia
Firma Schmid Polska Sp. z o. o. jest największym zakładem należącym do Grupy Schmid – szwajcarskiego producenta systemów energetycznego wykorzystania biomasy drzewnej. Od 1936 roku Schmid wspiera rozwój nowoczesnej energetyki dzięki innowacyjnym rozwiązaniom i zrównoważonym usługom.
Obecnie poszukujemy w Elblągu zaangażowanej, niezawodnej i dynamicznej osoby, która dołączy do naszego zespołu na stanowisko:
Specjalista/Specjalistka ds. zakupów
Lokale mieszkalneSprzedam za 425 000 zł
Ogł. nr 900037
z 12 stycznia
👑🏠 KINGDOM 🏠👑
NIERUCHOMOŚCI BLISKO CIEBIE
2-POKOJOWY APARTAMENT W STANIE DEWELOPERSKIM Z BALKONEM
Z MIEJSCEM POSTOJOWYM
W NOWO POWSTAŁYM KOMPLEKSIE TRIMARE
ULICA MIERZEJA PARK, SZTUTOWO
ZatrudnięHandel
Ogł. nr 900540
z 15 stycznia
Doradca działu części – HADM Gramatowski
Opał i ogrzewanieSprzedam za 200 zł
Ogł. nr 899935
z 11 stycznia
🔥 SERWIS KOTŁÓW I PIECÓW NA EKOGROSZEK I PELLET oraz KOLEKTORÓW SŁONECZNYCH
🔧
Kontakt mailowy: ogloszenia@portel.pl
























