Domy mieszkalneSprzedam za 385 000 zł
Ogł. nr 905490
z 16 lutego
BIURO NIERUCHOMOŚCI
SZULC& SZULC
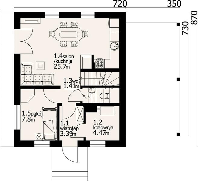
Powierzchnia działki: 700 m2
Dom na sprzedaż w stanie surowym zamkniętym w miejscowości Milejewo przy ul. Stawowej. Dom o pow. użytkowej 89 m2,parterowy z użytkowym poddaszem /Gładyszowo/ ze zmienionym układem ścian, okien, podniesiona ścianka kolankowa. Prąd przy działce, woda w drodze.
ZAPRASZAMY DO OGLĄDANIA
Kredyt na zakup nieruchomości załatwisz u specjalisty kredytowego w biurze.
Parter: przedpokój, pokój z aneksem kuchennym, sypialnia, kotłownia, WC.
Piętro: przedpokój, 3 pokoje, łazienka z WC.
Dom pokryty dachówką ceramiczną, okna trzyszybowe, przewidziano wentylację grawitacyjną, piec na pellet, szambo ekologiczne.
Dojazd do nieruchomości drogą utwardzoną, wjazd z drogi głównej asfaltowej.
W miejscowości są dwa sklepy, szkoła, przedszkole, ośrodek zdrowia, komunikacja miejska, kościół, bank, do Elbląga 10 km.
Ogłoszenia premium
Sam. osoboweKupię
Ogł. nr 904493
z 10 lutego
SKUP AUT ZA GOTÓWKE PŁACIMY NAJWIĘCEJZAINTERESOWANI JESTEŚMY KUPNEM KAŻDEGO AUTA NIEZALEŻNIE OD MARKI I ROKU ORAZ BEZ OPŁATSKUPUJEMY AUTA OSOBOWE DOSTAWCZE I CIĘŻAROWE ORAZ MOTOCYKLE-AUTA FIRMOWE-USZKODZONE BLACHARSKO I MECHANICZNIE-PO KOLIZJACHZADZWOŃ JUŻ DZIS I UMÓW SIĘ NA WYCENĘ I SPRZEDAŻ SWOJEGO AUTA
Lokale i budynki użytkoweSprzedam za 1 590 000 zł
Ogł. nr 904966
z 13 lutego
Hala na sprzedaż, Elbląg.
Remont.-budowlaneWykonam usługę
Ogł. nr 905153
z 14 lutego
ZŁOTA RĄCZKA NAPRAWI WSZYSTKO! MAM UPRAWNIENIA ELEKTRYCZNE, GAZOWE I CIEPŁOWNICZE. JEŚLI MASZ PROBLEM Z HYDRAULIKĄ, ELEKTRYKĄ, COŚ TRZEBA ZESPAWAĆ, ZAMONTOWAĆ KABINĘ PRYSZNICOWĄ LUB WANNĘ. A MOŻE POWIESIĆ ŻYRANDOL, LUSTRO LUB TELEWIZOR, WYMIENIĆ WĘŻYK CZY KRAN, MOŻE ZEPSUŁA SIĘ SPŁUCZKA PODTYNKOWA? PODŁĄCZĘ KUCHENKĘ I PŁYTĘ GAZOWĄ, PRALKĘ I ZMYWARKĘ. PRZEPYCHAM RURY KANALIZACYJNE. WYSTAWIAM FAKTURY. HYDRAULIKA, ,ELEKTRYKA, GAZ, ŚLUSARSTWO I SPAWANIE
Kursy, szkoleniaWykonam usługę za 1 190 zł
Ogł. nr 904519
z 10 lutego
🚜 Szkolenia na operatorów ciężkiego sprzętu i szkoleń UDT
Zapraszamy na profesjonalne szkolenia operatorów: równiarek, koparko-ładowarek, koparek jednonaczyniowych, , ładowarek jednonaczyniowych, pilarek oraz rusztowań. Realizujemy kursy na urządzenia transportu bliskiego: podesty, żurawie, suwnice, wciągarki, wciągniki, wszystkie kategorie wózków jezdniowych.
ZatrudnięProdukcja
Ogł. nr 905098
z 14 lutego
BI-PLAST Zatrudni Operatorów Wtryskarek
Dział Tworzywa Sztuczne.
Kontakt mailowy: ogloszenia@portel.pl
























