UWAGA!

----
Ok
Jeśli chcesz nawiązać kontakt z ogłoszeniodawcą, wypełnij formularz i kliknij na WYŚLIJ
Twój adres e-mail
Treść zapytania
Załączniki
Dodaj załącznik
 
Wyślij do mnie kopię z potwierdzeniem
 
Oferty przeznaczone wyłącznie dla osób dorosłych. Jeśli nie masz 18 lat, to idź lepiej odrobić lekcje albo pograć w piłkę.

Lokale i budynki użytkoweWynajmę komuś za 1 200 zł Ogł. nr 887482
z 21 października

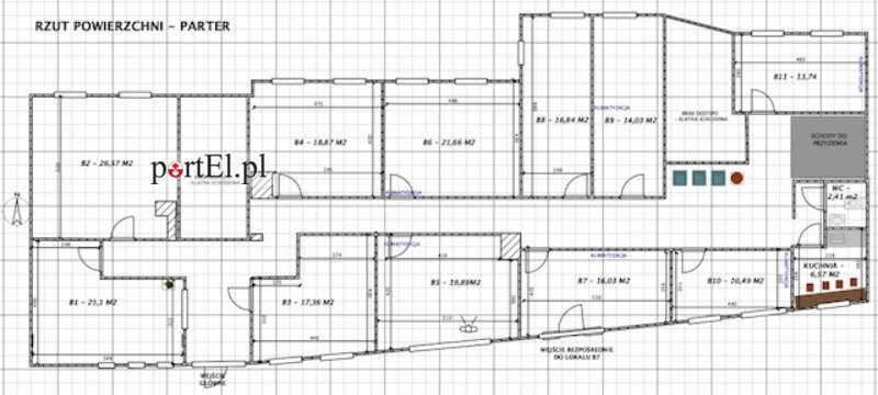
Lokale usługowe w Starówka K15,Elbląg – Stare Miasto

Do  wynajęcia lokale usługowe  o powierzchni od 10 m2 do 26 m2 w  Starówka K15 w Elblągu przy ul. Kowalskiej 15 – 18.

Najemcy mogą bezpłatnie korzystać z:

– trzech sal spotkań 3,5,8 osobowe,

– najszybszego internetu – światłowód 1 GB,

– parkingu ze  szlabanem,

– ochrony wynajmowanych pomieszczeń – monitoring firmy ochroniarskiej oraz  monitoring wizyjny,

– aneksu kuchennego,

 


Do wynajęcia 11 wydzielonych pomieszczeń usługowych dla firmy z każdej branży – okazja na integrację, wymianę informacji, doświadczeń oraz pozyskiwanie nowych kontaktów.

 

Starówka K15 zlokalizowana jest w prestiżowej i atrakcyjnej lokalizacji na Starym Mieście w Elblągu przy ul. Kowalskiej 15 – 18

 

Starówka K15 to:

– 310 m2 powierzchni użytkowej w tym ponad 110 m2 do wspólnego korzystania,

– 11 wydzielonych pomieszczeń usługowych o powierzchni od 10 m2 do 26 m2 – możliwość dostosowania wielkości powierzchni biurowych do oczekiwań Najemcy,

– 3 sale spotkań – do bezpłatnego korzystania tylko przez Najemców,

– możliwość rejestracji wirtualnego biura,

– dostęp do bezpłatnego parkingu ze szlabanem,

– ok. 50 m do ogólnodostępnego parkingu (65 miejsc postojowych) oraz wzdłuż lokalu,

– klimatyzacja i/lub wentylacja mechaniczna w pomieszczeniach biurowych,

– wysoki standard wykończenia, 

– gniazdka LAN w każdym pomieszczeniu, WIFI w całym obiekcie + dostęp do światłowodu o prędkości do 1 Gb/s,

– bezpieczeństwo – szyby antywłamaniowe, monitoring firmy ochroniarskiej, monitoring wizyjny,

– spokojne i przyjazne środowisko pracy,

– czystość – regularne sprzątanie powierzchni wspólnych,

– prestiżowa i doskonała lokalizacja – przy głównym ciągu komunikacyjnym Starego Miasta,

– doskonałe połączenie komunikacyjne (autobusy, tramwaje),

 

W bezpośrednim sąsiedztwie Ratusz Staromiejski, Poczta Polska, hotele oraz liczne restauracje, kawiarnie, cukiernie, sklepy spożywcze. 

 

Lokal B1 – wynajęte,

Lokal B2 – wynajęte,

Lokal B3 – wynajęte,

Lokal B4 – wynajęte,

Lokal B5 – wynajęte,

Lokal B6 – wynajęte,

Lokal B7 – wynajęte,

Lokal B8 – pow. 16,84 m2 – 1 200,00 zł

Lokal B9 – wynajęte,

Lokal B10 – pow. 10,49 m2 – 1 000,00 zł,

Lokal B11 – wynajęte,

 

Do kosztów najmu należy doliczyć opłatę administracyjną w wysokości 28,49 zł/m2 liczoną od wynajmowanej powierzchni biurowej oraz opłatę za zużycie energii elektrycznej.

Opłata administracyjna jest w formie ryczałtu i nie podlega dodatkowym rozliczeniom. 

Nie doliczamy kosztów za części wspólne.

 

W skład opłaty administracyjnej wchodzi:

–  centralne ogrzewanie budynku z sieci miejskiej,

–  wywóz nieczystości biurowych,

–  regularne sprzątanie powierzchni wspólnych,

 

Oferujemy również dla swoich Klientów, dostęp do wysokiej jakości usług dodatkowo płatnych w zakresie:

– obsługi finansowo/księgowej/kadrowej na preferencyjnych warunkach,

– zdalnej obsługi prawnej,

– realizacji projektów graficznych, tworzenia stron www, tworzenia i zarządzania kampaniami marketingowymi online w tym na portalach społecznościowych typu Facebook, Instagram,

– wsparcia IT w zakresie instalacji i konfiguracji nowego sprzętu oraz zdalnej pomoc informatycznej.

 

Zapraszamy do polubienia naszego profilu na FB

 

Dane nieruchomości
Powierzchnia:
21 m²
Cena:
1 200 zł   (57 zł/m²)
Lokalizacja:
Elbląg
Kontakt

Adres:

Elbląg

Kom.:

50X XXX XXX (pokaż)

WWW:

www.facebook.com
Zobacz średnie ceny ofertowe wynajmu lokali użytkowych w Elblągu

Ogłoszenia premium

Ogłoszenia Premium zapewniają nawet do kilku razy więcej odpowiedzi.
Premium
Elbląg TRANSPORT, PRZEPROWADZKI, WYWÓZ ŚMIECI-   usługi transportowe ADAMPrzeprowadzki pokoju, mieszkania, domu,

MebleWykonam usługę Ogł. nr 887483
z 21 października

TRANSPORT, PRZEPROWADZKI, WYWÓZ ŚMIECI-   usługi transportowe "ADAM"

  • Przeprowadzki pokoju, mieszkania, domu, usługi przeprowadzkowe.
  • Montaż i domontaż mebli i sprzętu
  • Wywóz przedmiotów gabarytowych, śmieci, gruzu, czyszczenie pomieszczeń
  • Transport pojedynczych mebli i sprzetu AGD, taksówki bagażowe
  • Przeprowadzki firm, biur, magazynów, transport mebli.
  • Usługi transportowe materiałów budowlanych i innych, taxi bagażowe
  • Przewozy lokalne i długodystansowe w kraju i Europie usługi transportowe

 

Premium
Elbląg 🚗🔥 Wielka Promocja! Kurs Prawa Jazdy w firmie Joltex już za 2400  zł!

Kursy, szkoleniaWykonam usługę za 2 600 zł Ogł. nr 886610
z 16 października

🚗🔥 Wielka Promocja! Kurs Prawa Jazdy w firmie Joltex już za 2400  zł! 🔥🚗

Prawo jazdy to swoboda i niezależność! Zdobądź je z nami!

Premium

Części i akcesoriaWykonam usługę za 100 zł Ogł. nr 885955
z 13 października

EWI Mechanika Pojazdowa i Blacharstwo

Potrzebujesz szybkiej i solidnej naprawy auta? 

Skontaktuj się z nami!

Niezależnie od marki i modelu Twojego pojazdu – możesz liczyć na nasze wsparcie!

Oferujemy:

  • Wymiana dynamiczna oleju w automatycznych skrzyniach biegów
  • Naprawy mechaniczne i elektryczne
  • Konserwacja podwozi
  • Wymiana rozrządów
  • Wymiana tarcz i klocków hamulcowych
  • Naprawa zawieszenia
  • Naprawy blacharskie
  • Wymiana olejów i filtrów
  • Przygotowanie do przeglądu
Premium
Elbląg Cięcie i grawerowanie laserem, personalizowane ozdoby i prezenty 

Reklama i poligrafiaWykonam usługę za 15 zł Ogł. nr 886480
z 16 października

Cięcie i grawerowanie laserem, personalizowane ozdoby i prezenty 

Premium
Elbląg Poszukujemy Kosmetologa lub Kosmetyczki – Dołącz do Zespołu Kliniki Medesta! 🌟Klinika Medesta w

ZatrudnięZdrowie i uroda Ogł. nr 887098
z 20 października

Poszukujemy Kosmetologa lub Kosmetyczki – Dołącz do Zespołu Kliniki Medesta! 🌟

Klinika Medesta w Elblągu to miejsce, gdzie pasja spotyka się z profesjonalizmem! Zyskaj szansę na rozwój w renomowanej klinice kosmetologii i medycyny estetycznej. Jeśli pragniesz pracować w inspirującym zespole i realizować się zawodowo, czekamy właśnie na Ciebie!

Reklama
Redakcja nie ponosi odpowiedzialności za treść i formę ogłoszeń
Infolinia działu ogłoszeń: 55 235 39 76 pon. - piątek, godz. 8.30 - 16.30
Kontakt mailowy: ogloszenia@portel.pl