Lokale i budynki użytkoweWynajmę komuś za 1 200 zł
Ogł. nr 892520
z 22 listopada
Lokale usługowe w Starówka K15,Elbląg – Stare Miasto
Do wynajęcia lokale usługowe o powierzchni od 10 m2 do 26 m2 w Starówka K15 w Elblągu przy ul. Kowalskiej 15 – 18.
Najemcy mogą bezpłatnie korzystać z:
– trzech sal spotkań 3,5,8 osobowe,
– najszybszego internetu – światłowód 1 GB,
– parkingu ze szlabanem,
– ochrony wynajmowanych pomieszczeń – monitoring firmy ochroniarskiej oraz monitoring wizyjny,
– aneksu kuchennego,
Do wynajęcia 11 wydzielonych pomieszczeń usługowych dla firmy z każdej branży – okazja na integrację, wymianę informacji, doświadczeń oraz pozyskiwanie nowych kontaktów.
Starówka K15 zlokalizowana jest w prestiżowej i atrakcyjnej lokalizacji na Starym Mieście w Elblągu przy ul. Kowalskiej 15 – 18
Starówka K15 to:
– 310 m2 powierzchni użytkowej w tym ponad 110 m2 do wspólnego korzystania,
– 11 wydzielonych pomieszczeń usługowych o powierzchni od 10 m2 do 26 m2 – możliwość dostosowania wielkości powierzchni biurowych do oczekiwań Najemcy,
– 3 sale spotkań – do bezpłatnego korzystania tylko przez Najemców,
– możliwość rejestracji wirtualnego biura,
– dostęp do bezpłatnego parkingu ze szlabanem,
– ok. 50 m do ogólnodostępnego parkingu (65 miejsc postojowych) oraz wzdłuż lokalu,
– klimatyzacja i/lub wentylacja mechaniczna w pomieszczeniach biurowych,
– wysoki standard wykończenia,
– gniazdka LAN w każdym pomieszczeniu, WIFI w całym obiekcie + dostęp do światłowodu o prędkości do 1 Gb/s,
– bezpieczeństwo – szyby antywłamaniowe, monitoring firmy ochroniarskiej, monitoring wizyjny,
– spokojne i przyjazne środowisko pracy,
– czystość – regularne sprzątanie powierzchni wspólnych,
– prestiżowa i doskonała lokalizacja – przy głównym ciągu komunikacyjnym Starego Miasta,
– doskonałe połączenie komunikacyjne (autobusy, tramwaje),
W bezpośrednim sąsiedztwie Ratusz Staromiejski, Poczta Polska, hotele oraz liczne restauracje, kawiarnie, cukiernie, sklepy spożywcze.
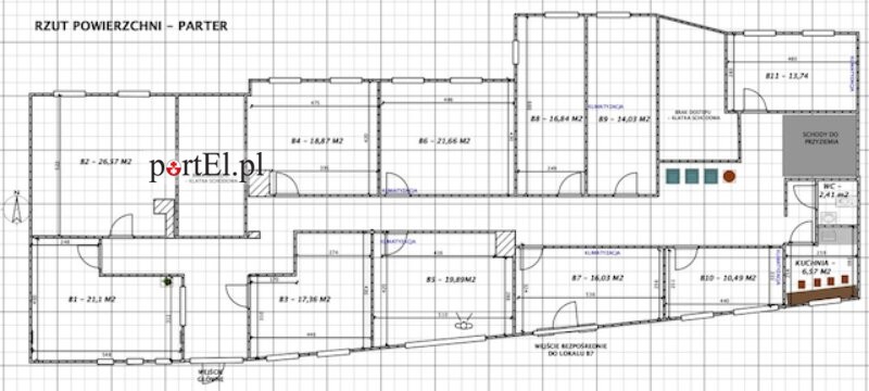
Lokal B1 – wynajęte,
Lokal B2 – wynajęte,
Lokal B3 – wynajęte,
Lokal B4 – wynajęte,
Lokal B5 – wynajęte,
Lokal B6 – wynajęte,
Lokal B7 – wynajęte,
Lokal B8 – pow. 16,84 m2 – 1 200,00 zł
Lokal B9 – wynajęte,
Lokal B10 – pow. 10,49 m2 – 1 000,00 zł,
Lokal B11 – wynajęte,
Do kosztów najmu należy doliczyć opłatę administracyjną w wysokości 28,49 zł/m2 liczoną od wynajmowanej powierzchni biurowej oraz opłatę za zużycie energii elektrycznej.
Opłata administracyjna jest w formie ryczałtu i nie podlega dodatkowym rozliczeniom.
Nie doliczamy kosztów za części wspólne.
W skład opłaty administracyjnej wchodzi:
– centralne ogrzewanie budynku z sieci miejskiej,
– wywóz nieczystości biurowych,
– regularne sprzątanie powierzchni wspólnych,
Oferujemy również dla swoich Klientów, dostęp do wysokiej jakości usług dodatkowo płatnych w zakresie:
– obsługi finansowo/księgowej/kadrowej na preferencyjnych warunkach,
– zdalnej obsługi prawnej,
– realizacji projektów graficznych, tworzenia stron www, tworzenia i zarządzania kampaniami marketingowymi online w tym na portalach społecznościowych typu Facebook, Instagram,
– wsparcia IT w zakresie instalacji i konfiguracji nowego sprzętu oraz zdalnej pomoc informatycznej.
Zapraszamy do polubienia naszego profilu na FB
Ogłoszenia premium
GastronomiaWykonam usługę za 18 zł
Ogł. nr 891620
z 17 listopada
🍲 Całodzienne wyżywienie dla żłobków i przedszkoli – Smakpol Catering 🍲
Zdrowe, domowe i zbilansowane posiłki dla najmłodszych!Przygotowywane zgodnie z wymogami Ministerstwa Zdrowia, pod nadzorem dietetyka z 20-letnim doświadczeniem. Świeżość, bezpieczeństwo i najwyższa jakość w każdym daniu!
MebleWykonam usługę
Ogł. nr 892037
z 19 listopada
TRANSPORT, PRZEPROWADZKI, WYWÓZ ŚMIECI- usługi transportowe "ADAM"
- Przeprowadzki pokoju, mieszkania, domu, usługi przeprowadzkowe.
- Montaż i domontaż mebli i sprzętu
- Wywóz przedmiotów gabarytowych, śmieci, gruzu, czyszczenie pomieszczeń
- Transport pojedynczych mebli i sprzetu AGD, taksówki bagażowe
- Przeprowadzki firm, biur, magazynów, transport mebli.
- Usługi transportowe materiałów budowlanych i innych, taxi bagażowe
- Przewozy lokalne i długodystansowe w kraju i Europie usługi transportowe
ZatrudnięLogistyka
Ogł. nr 891615
z 21 listopada
Producent opraw oświetleniowych LIRA Spółka z o. o. w związku z dynamicznym rozwojem zatrudni:
Specjalista w Dziale Realizacji Sprzedaży (BOK)
Działki, gruntySprzedam za 485 000 zł
Ogł. nr 891374
z 15 listopada
Najpiękniejsza działka w Pomorskiej wsi
Sam. osoboweSprzedam za 59 900 zł
Ogł. nr 892463
z 22 listopada
Auto Leew LEWANDOWSKI
Kupujemy i Sprzedajemy tylko dobre auta
Za auta z Polskiego Salonu Płacimy Najwięcej
OPEL MOKKA X BENZYNA ROK 2019
WIĘCEJ SZCZEGÓŁÓW, ZDJĘĆ I AUT KLIKNIJ TU> https://leew.pl/
FILMIK AUTA NA YOUTUBE
PREZENTUJEMY TU > https://youtu.be/8XTQF2PJLH0
ZAPRASZAMY RÓWNIEŻ W NIEDZIELE
DOJAZD ORAZ SZCZEGÓŁOWE GODZINY OTWARCIA
ZNAJDĄ PAŃSTWO NA WIZYTÓWCE GOOGLE
ZAPRASZAMY PO DOBRE ZAREJESTROWANE I UBEZPIECZONE SAMOCHODY
Kontakt mailowy: ogloszenia@portel.pl













