Lokale mieszkalneSprzedam za 695 000 zł
Ogł. nr 904965
z 13 lutego
🏠DE FACTO NIERUCHOMOŚCI🏠
TWÓJ ZAUFANY PARTNER
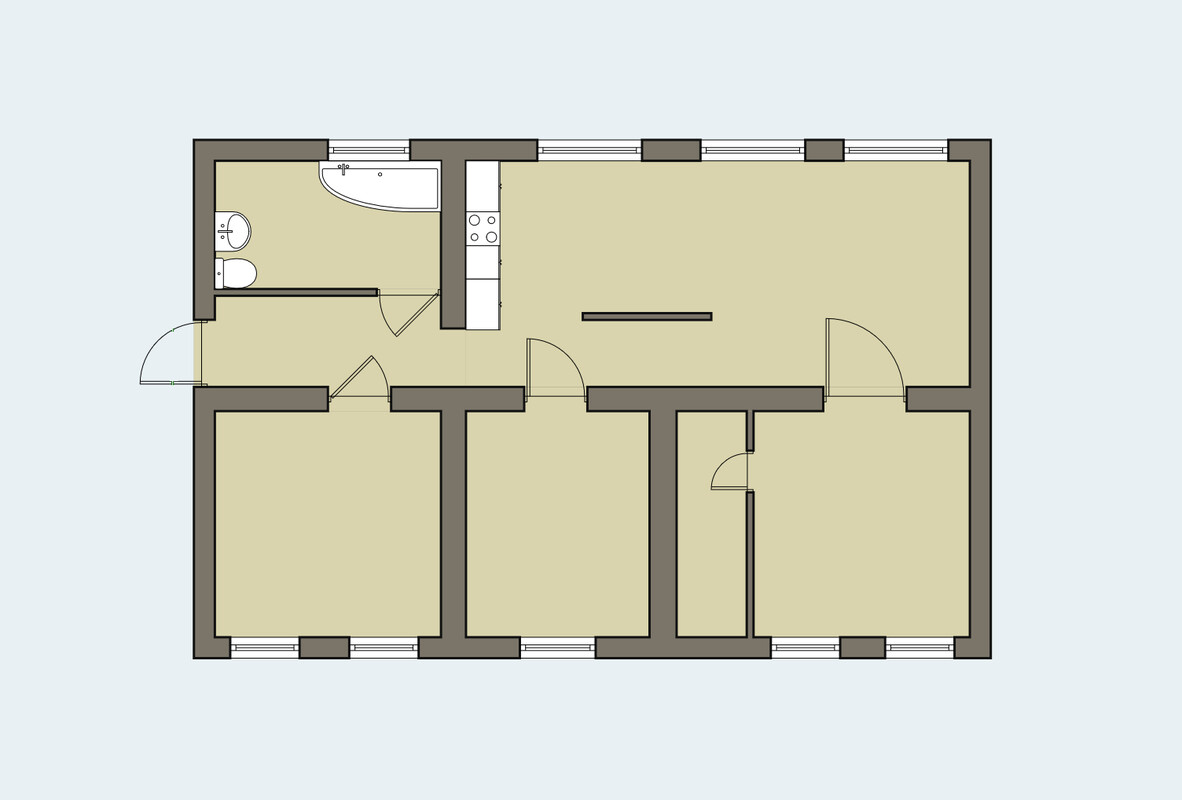
MIESZKANIE W NA UL. ORĘŻNEJ W ELBLĄGU
114,48 M2 - 4 POKOJE W TYM SALON Z ANEKSEM ORAZ ŁAZIENKA
MIESZKANIE POSIADA PIWNICĘ I DOSTĘP DO OGRODU!
ZAPRASZAMY!
DE FACTO NIERUCHOMOŚCI zaprasza Państwa do zapoznania się z nową ofertą mieszkania 4 - pokojowego położonego na ul. Orężnej w Elblągu.
LOKALIZACJA:
Mieszkanie położone jest przy ul. Orężnej 12 w Elblągu, w spokojnej i lubianej części miasta, w rejonie ulic Bema i Saperów. To miejsce cenione za kameralny charakter, z dala od miejskiego zgiełku, a jednocześnie z bardzo dobrą dostępnością do centrum. W najbliższej okolicy znajdują się sklepy, szkoły, przedszkola, punkty usługowe oraz tereny zielone idealne do spacerów i wypoczynku. Lokalizacja łączy w sobie komfort codziennego życia z wygodą miejskiej infrastruktury.
MIESZKANIE:
Na sprzedaż oferowane jest wyjątkowo przestronne mieszkanie o powierzchni 114,48 m², które zapewnia wygodę zarówno rodzinie, jak i osobom poszukującym dużej przestrzeni do życia. W skład lokalu wchodzą 3 ustawne sypialnie oraz jasny salon z aneksem kuchennym, będący naturalnym centrum domowego życia. Dodatkowym atutem salonu jest kominek, który nadaje wnętrzu ciepły, przytulny klimat.
Do mieszkania przynależy piwnica, a mieszkańcy mają możliwość korzystania z ogródka, udostępnionego na podstawie sąsiedzkiego porozumienia. Ogrzewanie oraz ciepła woda pochodzą z sieci miejskiej, a w lokalu zamontowane są okna PCV z elegancką, drewnopodobną okleiną.
Budynek nie jest obecnie ocieplony, jednak wspólnota mieszkaniowa gromadzi środki na remont dachu. Mieszkanie wymaga odświeżenia, co daje przyszłemu właścicielowi pełną swobodę w stworzeniu wnętrza dopasowanego do własnych potrzeb i gustu.
FINANSE:
Cena: 695.000 PLN
Jednorazowa opłata dla biura nieruchomości.
Niniejsze ogłoszenie nie stanowi oferty w rozumieniu art.66 § 1 Kodeksu cywilnego i ma charakter wyłącznie informacyjny.
Zapraszamy na prezentację mieszkania.
Ogłoszenia premium
ZatrudnięProdukcja
Ogł. nr 903886
z 6 lutego
MAGAZYNIER
Firma ACOUSTICS działająca w branży spawanych konstrukcji metalowych, w związku z intensywnym rozwojem, poszukuje kandydatów na stanowisko:
MAGAZYNIER
ZatrudnięProdukcja
Ogł. nr 904903
z 13 lutego
Firma DRE to prężnie działające przedsiębiorstwo specjalizujące się w produkcji skrzydeł drzwiowych i ościeżnic. Wieloletnie doświadczenie w połączeniu z nowoczesną technologią i wykwalifikowaną kadrą pozwala Firmie utrzymać się w ścisłej czołówce polskich producentów drzwi.
Obecnie poszukujemy osób do pracy w nowo powstającym zakładzie Tworzyw sztucznych w Pasłęku na stanowiska:
Operator/Operatorka ekstrudera/ wytłaczarki
Pomocnik/Pomocniczka ekstrudera/ wytłaczarki
Lokale i budynki użytkoweWynajmę komuś za 3 000 zł
Ogł. nr 904894
z 13 lutego
🌟 Przestronny, klimatyzowany lokal 80m² na wynajem – idealny na biuro lub usługi! 🌟
Dwa duże pomieszczenia, łazienka, aneks kuchenny, darmowy parking i monitoring!
Lokale mieszkalneSprzedam za 605 000 zł
Ogł. nr 904767
z 12 lutego
👑🏠 KINGDOM 🏠👑
NIERUCHOMOŚCI BLISKO CIEBIE
NOWOCZEŚNIE URZĄDZONE 3-POKOJOWE MIESZKANIE Z BALKONEM
W BARDZO DOBREJ LOKALIZACJI
ULICA ŁĘCZYCKA, ELBLĄG
GarażeWynajmę komuś za 350 zł
Ogł. nr 904178
z 8 lutego
Garaż murowany do wynajęcia, Elbląg, ul. Piaskowa.
Osoby, które zainteresowało to ogłoszenie obejrzały również:
Lokale mieszkalneSprzedam za 399 000 zł
Ogł. nr 901893
z 12 lutego
REZERWACJA ELBLĄG, ul. Topolowa, 61 m2,
3 pokoje, oddzielna kuchnia, oddzielne WC, balkon,
media z Miasta.
Domy mieszkalneSprzedam za 1 300 000 zł
Ogł. nr 904984
z 13 lutego
FUTURE NIERUCHOMOŚCI
SPRZEDA 2 DOMY W STEGNIE UL. SŁONECZNA
DWA WOLNOSTOJĄCE DOMY NA JEDNEJ DZIAŁCE
POWIERZCHNIA CAŁKOWITA WIĘKSZEGO DOMU: 213 m2
POWIERZCHNIA CAŁKOWITA MNIEJSZCZEGO DOMU: 43 m2
POWIERZCHNIA DZIAŁKI: 700 m2
OFERTA INWESTYCYJNA
CENA: 1 300 000 zł
Lokale mieszkalneSprzedam za 260 000 zł
Ogł. nr 904294
z 9 lutego
Kawalerka po generalnym remoncie (wszystko nowe) + piwnica --- 29,3 m2 --- Kalenkiewicza --- 10 piętro, bardzo duży balkon --- BEZPOŚREDNIO
Kontakt mailowy: ogloszenia@portel.pl











