Lokale mieszkalneSprzedam za 456 000 zł
Ogł. nr 901343
z 20 stycznia
ELBLĄG, UL. PRZYMURZE 6,PRZY STARYM MIEŚCIE
MIESZKANIE W STANIE DEWELOPERSKIM
NOWY BUDYNEK Z 2025r
2 POKOJE
POWIERZCHNIA 48 M2
MEDIA Z MIASTA
★ HAUSLAND REAL ESTATE★
MISJA: WIĘCEJ NIŻ UDANA TANSAKCJA
Dni Otwarte – tylko po wcześniejszym umówieniu.
Prezentacje nieruchomości odbywają się wyłącznie w ustalonych terminach i godzinach, po wcześniejszym kontakcie telefonicznym. Dzięki temu możemy poświęcić Ci pełną uwagę i zapewnić komfortowe warunki wizyty.
Zadzwoń już dziś i zarezerwuj dogodny termin!
Na sprzedaż nowoczesne mieszkanie położone w Elbląg, w jednej z najbardziej prestiżowych i pożądanych lokalizacji w mieście - przy ulicy Przymurze 6,tuż obok Starego Miasta. To wyjątkowa propozycja dla osób, które chcą zamieszkać w samym sercu Elbląga, w miejscu, gdzie historyczna architektura harmonijnie łączy się z nowoczesnym stylem życia. Inwestycja Przymurze 6 to elegancki, nowy budynek wielorodzinny, doskonale wpisujący się w klimat starówki oraz sąsiedztwo urokliwych kanałów, a jednocześnie oferujący wszystkie udogodnienia współczesnego budownictwa, w tym windę oraz nowoczesne rozwiązania techniczne.
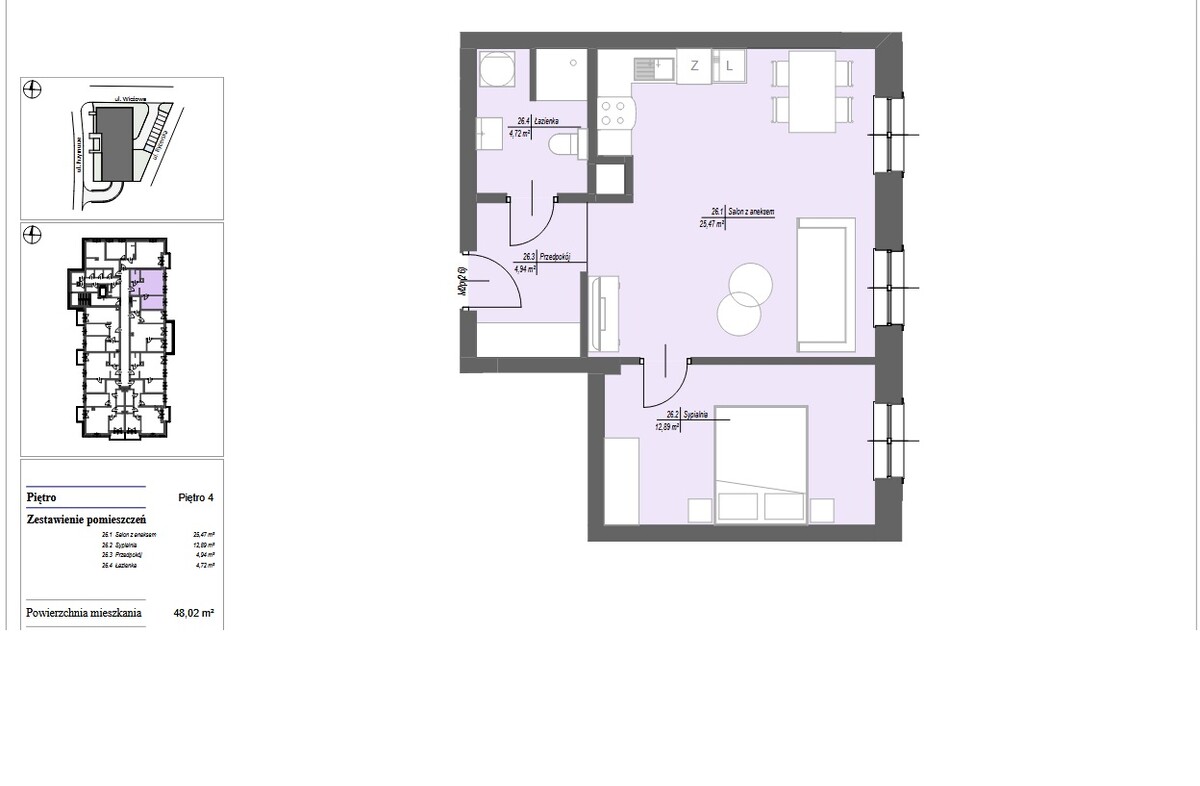
Mieszkanie znajduje się na 1.piętrze, co zapewnia idealne połączenie wygody, bezpieczeństwa i komfortu codziennego użytkowania. Lokal o powierzchni 48 m² został zaprojektowany z dużą dbałością o funkcjonalność oraz ergonomię przestrzeni. Składa się z dwóch pokoi, w tym bardzo przestronnego salonu z miejscem na aneks kuchenny, który stanowi doskonałą bazę do stworzenia nowoczesnej, jasnej strefy dziennej. Komfortowa sypialnia oferuje prywatność i spokój, a jej proporcje umożliwiają swobodną aranżację zgodnie z indywidualnymi potrzebami. Całość dopełnia łazienka oraz funkcjonalny korytarz, który zapewnia wygodną komunikację pomiędzy pomieszczeniami oraz miejsce na zabudowę.
Mieszkanie znajduje się w stanie deweloperskim, co daje przyszłemu właścicielowi pełną swobodę aranżacyjną i możliwość wykończenia wnętrza według własnego gustu, standardu i stylu życia. Budynek, w którym zlokalizowany jest lokal, został oddany do użytkowania w 2025 roku i wyróżnia się wysoką jakością wykonania, nowoczesną architekturą oraz dbałością o detale na poziomie deweloperskim. Wszystkie media w mieszkaniu pochodzą z sieci miejskiej, co zapewnia komfort oraz stabilne koszty utrzymania. Do mieszkania przynależy również komórka lokatorska, stanowiąca praktyczne i wygodne miejsce do przechowywania.
Mieszkanie:
- Salon z aneksem kuchennym ok.25,47 m2,
- Sypialnia ok.12,89 m2,
- Łazienka ok.4,72 m2,
- Korytarz ok.4,94 m2
Suma powierzchni: 48 m2.
Główne zalety nieruchomości:
- Nowoczesne mieszkanie w stanie deweloperskim,
- Powierzchnia 48 m² i bardzo funkcjonalny układ pomieszczeń,
- Przestronny salon z miejscem na aneks kuchenny,
- Komfortowa, ustawna sypialnia,
- Budynek oddany do użytkowania w 2025 roku,
- Wysoki standard deweloperski i dbałość o detale,
- Wszystkie media z sieci miejskiej,
- Przynależna komórka lokatorska,
- Idealne zarówno do zamieszkania, jak i jako inwestycja pod wynajem,
- I wiele więcej!
Opis lokalizacji:
Ulica Przymurze to absolutnie wyjątkowe miejsce na mapie Elbląga. Położona bezpośrednio przy Starym Mieście, w sąsiedztwie zabytkowej zabudowy, kanałów i Bulwaru Zygmunta Augusta, oferuje niepowtarzalny klimat oraz prestiż, którego nie da się porównać z żadną inną częścią miasta. To lokalizacja, która pozwala cieszyć się miejskim stylem życia - restauracjami, kawiarniami, sklepami i wydarzeniami kulturalnymi - wszystko w zasięgu kilku minut spaceru, a jednocześnie zapewnia komfort, bezpieczeństwo i nowoczesną infrastrukturę.
Główne zalety lokalizacji:
- Prestiżowe położenie tuż przy Starym Mieście,
- Bezpośrednie sąsiedztwo kanałów i bulwarów spacerowych,
- Bliskość restauracji, kawiarni i punktów usługowych,
- Szybki dostęp do terenów rekreacyjnych i zielonych,
- Doskonała lokalizacja inwestycyjna z wysokim potencjałem najmu,
- Centrum miasta bez rezygnacji z komfortu i nowoczesności,
- I wiele więcej!
Przy zakupie nieruchomości należy uwzględnić koszty notarialne oraz prowizje dla biura nieruchomości w wysokości 1,23%.
Spotkaj się ze mną i zobacz, jak może wyglądać Twoje nowe mieszkanie!
HausLand Real Estate,
82-300 Elbląg, ul. Armii Krajowej 7-8/1
Treść niniejszego ogłoszenia nie stanowi oferty handlowej w rozumieniu Kodeksu Cywilnego.
Ogłoszenia premium
Kursy, szkoleniaWykonam usługę za 1 190 zł
Ogł. nr 900573
z 15 stycznia
🚜 Nowe kursy operatorów maszyn w 2026 r. – Start już w styczniu!
Zapraszamy na profesjonalne szkolenia operatorów: równiarek, koparko-ładowarek, koparek jednonaczyniowych, przecinek, węzłów, pomp, ładowarek jednonaczyniowych, walców, pilarek oraz rusztowań. Realizujemy kursy na urządzenia transportu bliskiego: podesty, żurawie, suwnice, wciągarki, wciągniki, wszystkie kategorie wózków jezdniowych. Kursy z ramienia UDT ruszają już 24 stycznia!Zapisy na kursy wózków w Elblągu do 21 stycznia! 😊
Domy mieszkalneSprzedam za 699 000 zł
Ogł. nr 901139
z 19 stycznia
👑🏠 KINGDOM 🏠👑
NIERUCHOMOŚCI BLISKO CIEBIE
DUŻY, WOLNOSTOJĄCY BUDYNEK USŁUGOWY Z POTENCJAŁEM
Z DUŻĄ DZIAŁKĄ I BLASZANYM GARAŻEM
W CICHEJ I SPOKOJNEJ LOKALIZACJI
ULICA FROMBORSKA, KRASNY LAS
TransportoweWykonam usługę za 100 zł
Ogł. nr 901189
z 19 stycznia
PRZEPROWADZKI, TRANSPORT, WYWÓZ STARYCH MEBLI
ZatrudnięMotoryzacja
Ogł. nr 900045
z 13 stycznia
Specjalista ds. sprzedaży samochodów - salon Hyundai
Dla dzieciSprzedam za 80 zł
Ogł. nr 900939
z 18 stycznia
SPRZEDAM ŁYZWY DZIECIĘCE
ROZMIAR 30-33
Osoby, które zainteresowało to ogłoszenie obejrzały również:
Za darmo
Ogł. nr 901351
z 20 stycznia
Kontakt mailowy: ogloszenia@portel.pl




















