Lokale mieszkalneSprzedam za 374 999 zł
Ogł. nr 889755
z 4 listopada
🏡 Nowoczesne mieszkanie po generalnym remoncie – Elbląg, ul. Ogrodowa
sprzedam prywatnie
Cena: 374 999 zł
Powierzchnia: 40 m²
Liczba pokoi: 3
Piętro: wysoki parter
Budynek: kamienica z ok.1945 r. , 2 piętra
Stan prawny: pełna własność, księga wieczysta
Nieruchomość znajduje się na wysokim parterze dwupiętrowego budynku z nową, odmalowaną elewacją ozdobioną detalami architektonicznymi. Dach po remoncie – pokryty nową papą, budynek jest ocieplony.
Mieszkanie jest w trakcie generalnego remontu prowadzonego przez firmę JAVA Architekci z Elbląga, dzięki czemu przyszły właściciel ma gwarancję wysokiej jakości wykonania i estetyki.
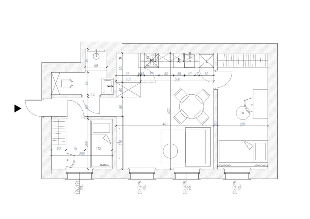
Lokal jest doskonale zaprojektowany — każdy metr został przemyślany, by zapewnić maksymalną funkcjonalność i komfort.
Pomieszczenia:
salon z aneksem kuchennym,
dwie sypialnie,
łazienka z WC,
spiżarnia,
piwnica z osobnym wejściem należąca wyłącznie do tego mieszkania.
Wysokość pomieszczeń: ok.2,8 m – daje to poczucie przestrzeni i pozwala na efektowne aranżacje.
Mieszkanie wykończone jest w wysokim standardzie z użyciem materiałów bardzo dobrej jakości:
wszystkie tynki skute i wykonane od nowa,
nowa wylewka i podłoga,
nowe instalacje: elektryczna (kilkanaście obwodów), hydrauliczna i gazowa,
okna trzyszybowe,
przygotowane podłączenia pod sprzęty AGD,
okap podszafkowy w cenie,
szyny sufitowe na zasłony i firany ukryte w listwach,
meble na wymiar w cenie: zabudowa kuchenna, szafa wejściowa, szafka RTV ze szklanym frontem, zabudowa w garderobie oraz meble łazienkowe.
Łazienka:
prysznic z odpływem liniowym,
geberit z zabudową i szafką na wymiar,
szafka z umywalką wykonana przez stolarza.
Media:
Wszystkie media miejskie.
Ogrzewanie oraz ciepła woda z nowego pieca gazowego dwufunkcyjnego Beretta 25 kW (rozwiązanie jak w domu jednorodzinnym).
Miesięczne koszty utrzymania: ok. 360 zł (czynsz, media).
Budynek znajduje się w spokojnej części Elbląga przy ul. Ogrodowej 15, w kwartałowej zabudowie kamienic pośród zieleni.
Ulica została niedawno wyremontowana – wymieniono nawierzchnię i chodniki.
W bezpośrednim sąsiedztwie znajdują się:
sklepy spożywcze i punkty usługowe,
szkoła podstawowa i przedszkole,
przystanki komunikacji miejskiej,
tereny spacerowe,
blisko centrum miasta.
Za budynkiem znajduje się ogrodzony teren tylko dla mieszkańców, w tym wspólny ogród z wjazdem przez bramę automatyczną na pilota oraz miejsca postojowe.
Wejście do budynku możliwe jest z dwóch stron.
Mieszkanie niezamieszkane, świeżo po remoncie.
Zakończenie prac planowane jest na koniec grudnia 2025 r.
Istnieje możliwość wcześniejszej rezerwacji nieruchomości.
✅ generalny remont pod nadzorem architektów,
✅ kameralna kamienica z klimatem,
✅ spokojna okolica blisko centrum,
✅ prywatna piwnica z osobnym wejściem,
✅ miejsce postojowe za bramą,
✅ doskonała opcja inwestycyjna lub dla singla/pary.
Do ogłoszenia dołączone są wizualizacje przedstawiające planowane wykończenie wnętrza, wykonane przez biuro JAVA Architekci – prezentują rzeczywisty standard i koncepcję aranżacyjną mieszkania.
Ogłoszenia premium
Sam. osoboweKupię
Ogł. nr 888879
z 30 października
SKUP AUT ZA GOTÓWKE PŁACIMY NAJWIĘCEJZAINTERESOWANI JESTEŚMY KUPNEM KAŻDEGO AUTA NIEZALEŻNIE OD MARKI I ROKU ORAZ BEZ OPŁATSKUPUJEMY AUTA OSOBOWE DOSTAWCZE I CIĘŻAROWE ORAZ MOTOCYKLE-AUTA FIRMOWE-USZKODZONE BLACHARSKO I MECHANICZNIE-PO KOLIZJACHZADZWOŃ JUŻ DZIS I UMÓW SIĘ NA WYCENĘ I SPRZEDAŻ SWOJEGO AUTA
Sam. osoboweWykonam usługę za 150 zł
Ogł. nr 889000
z 30 października
AUTO SPA ZAPRASZA
ZABEZPIECZ SWÓJ LAKIER - CERAMIKA
- Kompleksowe przygotowanie samochodu do sprzedaży dla klientów indywidualnych, komisów
Obsługa samochodów flotowych, osobowych, dostawczych w zakresie utrzymania bieżącego porządku
Powłoki kwarcowo – ceramiczne
Korekta lakieru, korekta reflektorów
Pranie tapicerki samochodowej
Czyszczenie tapicerki skórzanej
Zabezpieczenie lakieru woskiem / maszynowo
Zapraszamy do kontaktu i współpracy
Czynne: pn- pt 8.00- 16.00 Sobota 8.00- 12.00
Elbląg Piławska 2
ZatrudnięObsługa biurowa
Ogł. nr 889063
z 31 października
MAAG Gear is a trusted provider of gear solutions for the cement and mining industries, with 110 years of history. With over 25 years of experience and formerly owned by FLSmidth, a leading mining and cement OEM supplier, MAAG is now under new ownership and is on a transformation and growth journey. We are an international company with sites in Zurich, Switzerland; Elblag, Poland and Milano, Italy, and operations and activities across the globe.
Domy mieszkalneSprzedam za 175 000 zł
Ogł. nr 889058
z 31 października
DOM DREWNIANY JEDNORODZINNY EKONOMICZNY
Jesteśmy firmą zajmującą się produkcją domów drewnianych mieszkalnych całorocznych i letniskowych w systemie szkieletowym. Więcej na stronie www.eco-house.net.pl
Lokale mieszkalneSprzedam za 399 000 zł
Ogł. nr 888969
z 30 października
👑🏠 KINGDOM 🏠👑
NIERUCHOMOŚCI BLISKO CIEBIE
PRZESTRONNE 3-POKOJOWE MIESZKANIE
Z DUŻYM OGRÓDKIEM I GARAŻEM
POŁOŻONE NA 1 PIĘTRZE W ODNOWIONEJ KAMIENICY
ULICA POPRZECZNA, ELBLĄG
Osoby, które zainteresowało to ogłoszenie obejrzały również:
Lokale mieszkalneSprzedam za 169 000 zł
Ogł. nr 889721
z 4 listopada
MEGA-CONSULT NIERUCHOMOŚCI - WYCENA, KUPNO, SPRZEDAŻ, WYNAJEM
OFERUJEMY LOKAL MIESZKALNY DO REMONTU — TYLKO 169.000 ZŁ! 🏠
Lokale mieszkalneSprzedam za 251 000 zł
Ogł. nr 889732
z 4 listopada
ATUT NIERUCHOMOŚCI poleca:
Przytulne mieszkanie 2 pokojowe na parterze – wygoda i komfort na wyciągniecie ręki!
Funkcjonalne mieszkanie o powierzchni 40,7mk przy ul. Nowodworskiej w docieplonym budynku.
Umów się na spotkanie: 667-254-779
Lokale mieszkalneSprzedam za 259 000 zł
Ogł. nr 889526
z 3 listopada
Agencja Nieruchomości CENTRUM
Sprzedam mieszkanie - Elbląg, al. Piłsudskiego.
*2 pokoje, 40,40 m2
*balkon
*parter
*media z miasta
Kontakt mailowy: ogloszenia@portel.pl


























