Lokale mieszkalneKupię
Ogł. nr 887979
z 24 października
SPRZEDAM
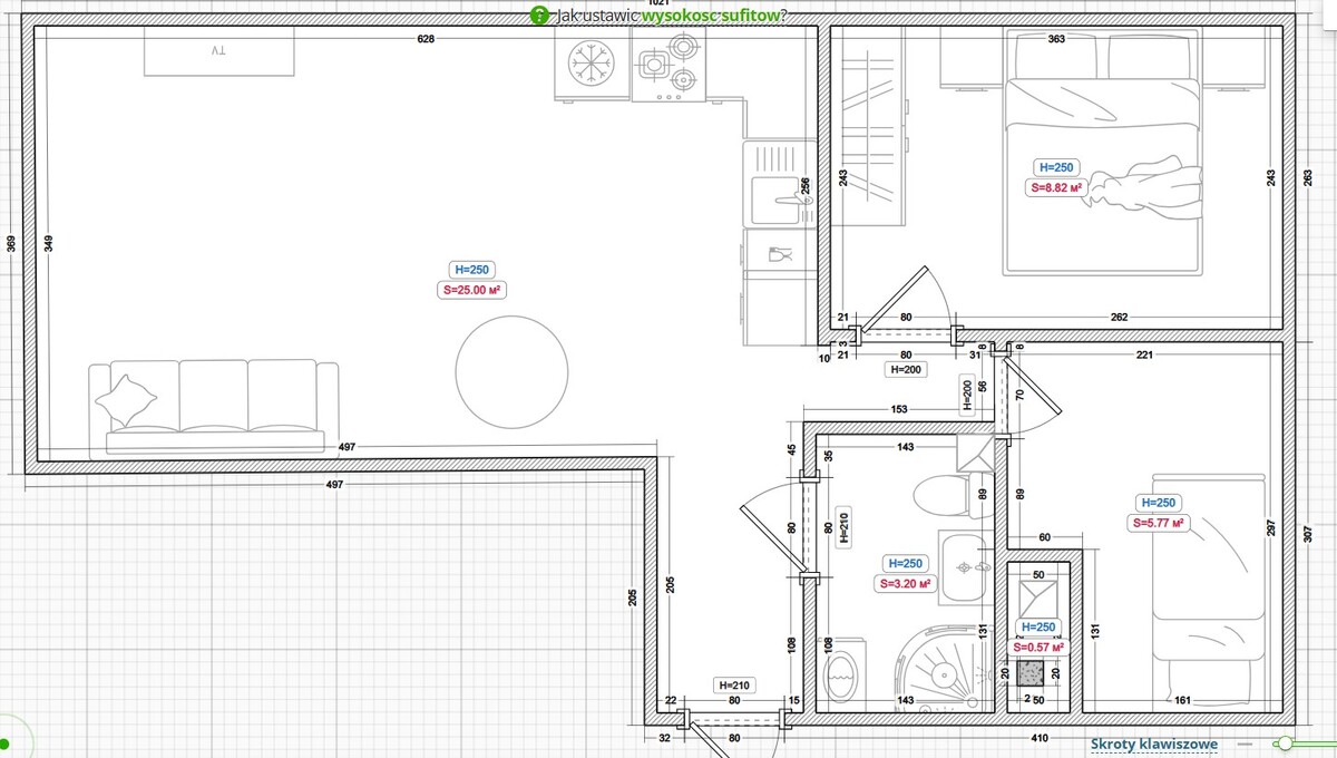
atrakcyjne 3-pokojowe mieszkanie 46 m² – po generalnym remoncie!
Lokalizacja: Elbląg, ul. Pułkownika Dąbka 9 (parter)
Mieszkanie do natychmiastowego zamieszkania – świeżo po kompleksowym remoncie
Najważniejsze atuty:
- 3 niezależne pokoje: salon z aneksem kuchennym + 2 sypialnie
- Powierzchnia: 46 m²
- Pełny generalny remont
- Wymienione wszystkie instalacje: elektryczna i hydrauliczna
- Nowa kuchnia na wymiar
- Nowa, elegancka łazienka z prysznicem
- Podłogi: panele + płytki
- Nowe drzwi wewnętrzne i wejściowe
- Parter – łatwy dostęp, (idealne dla osób starszych lub z wózkiem)
Doskonała lokalizacja – liczne sklepyprzystanki tramwajowe i autobusowe pod domem, przedszkola, szkoły, przychodnia.
Mieszkanie jasne, funkcjonalnie rozplanowane, bardzo ustawne – idealne dla pary, małej rodziny lub pod inwestycję (świetnie się wynajmuje!).
Cena: 415 000 zł (do negocjacji dla zdecydowanego kupca)
Miejsce postojowe: przy budynku za szlabanem
Zapraszam na oglądanie – mieszkanie naprawdę wyróżnia się jakością wykończenia!
Tel.667– 946– 729 (proszę dzwonić lub pisać na WhatsApp) Oglądanie możliwe od ręki, 7 dni w tygodniu.
Prywatny właściciel – bez pośredników
Ogłoszenia premium
ZatrudnięMotoryzacja
Ogł. nr 892182
z 20 listopada
Mechanik samochodowy – HADM Gramatowski
ZatrudnięProdukcja
Ogł. nr 889701
z 14 listopada
D. R.E. Sp. z o. o z siedzibą w Gronowie Górnym przy ulicy Nefrytowej 4 poszukuje pracownika na stanowisko Mechanik.
ZatrudnięGastronomia
Ogł. nr 891619
z 17 listopada
🍽️ Firma Cateringowa Smakpol-Catering sp. z o. o. poszukuje pomocy kuchennej od zaraz!
Dołącz do naszego zespołu!
Praca od zaraz! Godziny pracy: 8-16
Oferujemy: atrakcyjne zarobki, zatrudnienie na umowę
ZatrudnięGastronomia
Ogł. nr 892125
z 20 listopada
🍽️ Praca w Restauracji "Szalona Gęś" na Starym Mieście w Elblągu! 🍹
Zatrudnimy kelnera oraz kelnerki!
Szukasz ciekawej pracy? Dołącz do naszego zgranego zespołu!
Nie musisz mieć dużego doświadczenia – wszystkiego Cię nauczymy! 😊
Do ogroduSprzedam za 15 zł
Ogł. nr 888301
z 5 listopada
Jesienna promocja!!!THUJA SMARAGD OD PRODUCENTA - Myślęcin koło Elblaga.
Thuje dostępne w różnych rozmiarach od 80-200 cm. Rośliny gęste, zdrowe, prosto z gruntu.
Kontakt mailowy: ogloszenia@portel.pl








